DESIGNER

 

CONSTRUCTOR

小林敬司 氏

快適さと安全の追求、そして玉川上水 緑道に調和したマンションを実現したいと考え、 建築家の小林敬司氏に設計デザインと工事監理をお願いしました。

右の図をクリックして詳細図面が観られます

小林氏の設計はWebsiteで閲覧ください

施工は、 ご近所の渋谷区本町で創業50年 多くの注文住宅を手掛け,技術力と誠実さで評判の、三元建設(株)殿にお願いしました。

平断面図はこちらから

05平面図(3F)Designer_files/05%E5%B9%B3%E6%96%AD%E9%9D%A2%E5%9B%B3%283%E9%9A%8E%29.jpg
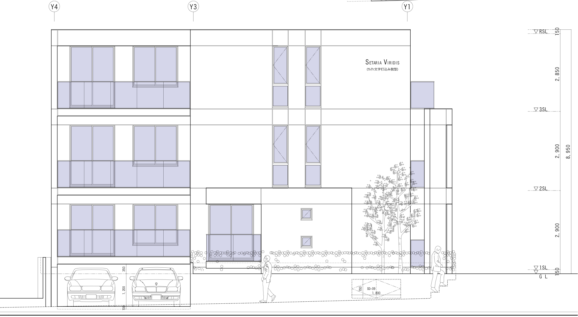
01正面図(東南側) クリックで拡大
04左側面図(西南側)クリックで拡大
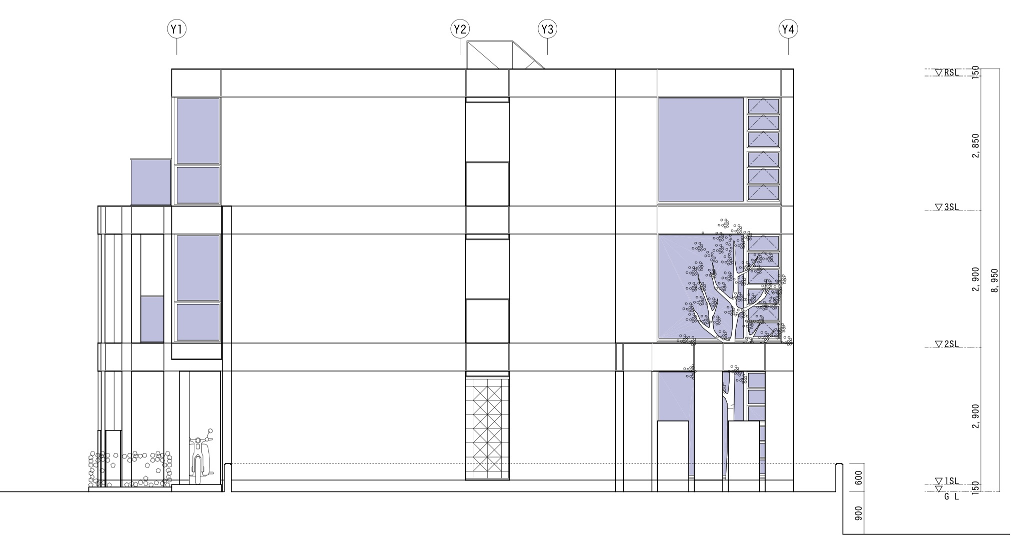
03背面図(北西側) クリックで拡大
02右側面図(北東側) クリックで拡大
06平面図(2F)Designer_files/06%E5%B9%B3%E6%96%AD%E9%9D%A2%E5%9B%B3%EF%BC%88%EF%BC%92%E9%9A%8E%EF%BC%89.jpg
07平面図(1F)Designer_files/07777%E5%B9%B3%E6%96%AD%E9%9D%A2%E5%9B%B3%EF%BC%88%EF%BC%91%E9%9A%8E%EF%BC%89.jpg

  建設責任者の笠原正雄氏です。 諸事にじっと耐え、やりすごす所はそれなりに、そうやって建設をリードし目的を達成していく姿は 藤沢周平の小説に出てくる若い武士とイメージが重なります。 実直で信頼のおける人物です。 

株式会社 小林敬司建築事務所 

三元建設株式会社Website へリンクします。

クリックで表示

クリックで表示

クリックで拡大